Konstruktionsbüro für Stahlbau
Werkstattzeichnungen mit Stücklisten und NC-Daten
Statik / Detailstatik
Softwareentwicklung für Berechnungsprozesse
Statik / Detailstatik
Softwareentwicklung für Berechnungsprozesse
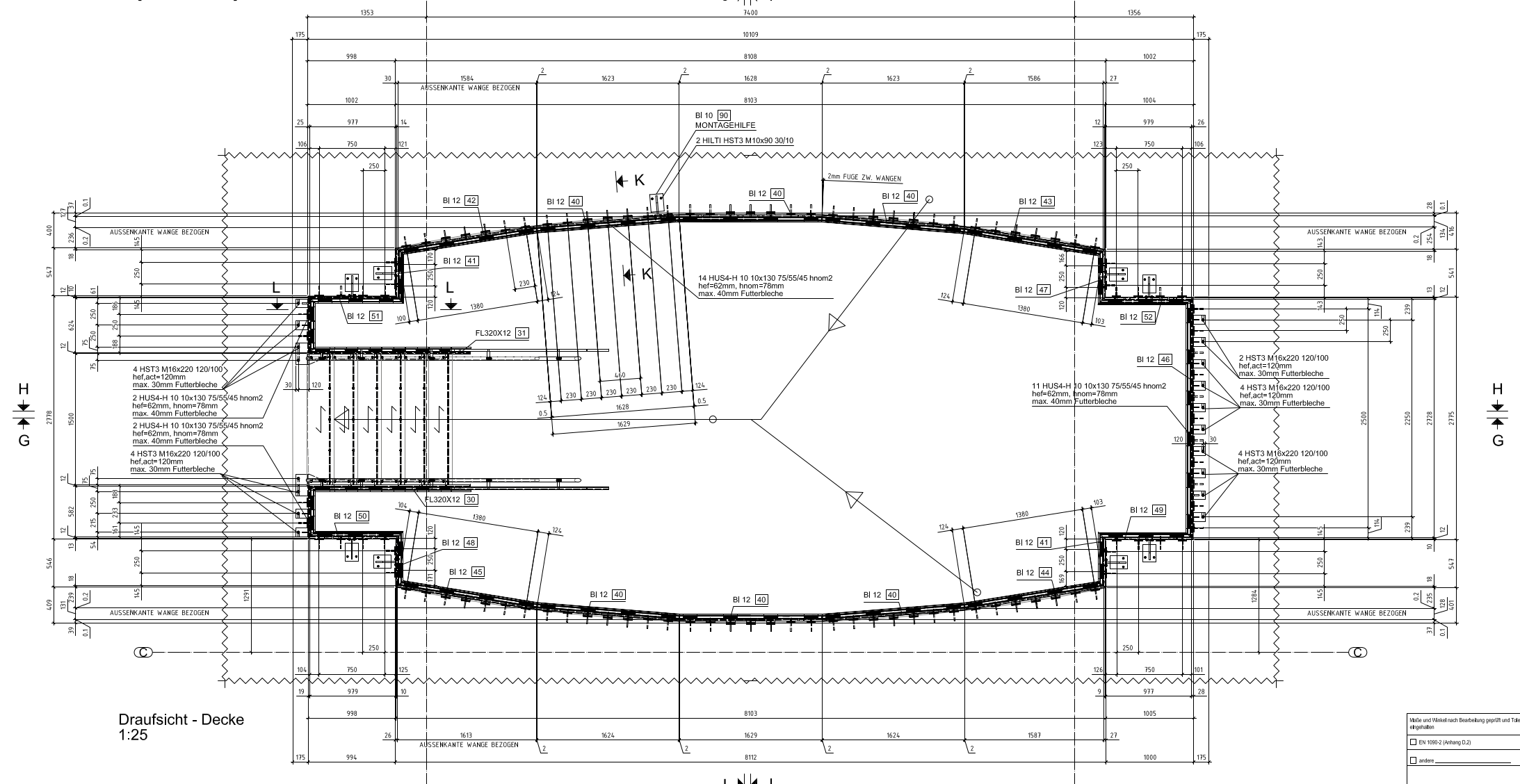
Montage - und Werkstattzeichnungen Stahlausarbeitung
- Vollständige Konstruktionsunterlagen für die Fertigung und Montage
- Sicherstellung einer reibungslosen Projektabwicklung
- Einsatz modernster Software und technischer Ausstattung
- Bereitstellung von PDF-Dateien aus 3D-Zeichnungen



Statik / Detailstatik
- Tragwerksplanung und statische Nachweise für Stahl- und Industriebau
- Detailstatiken für Anschlüsse, Bauteile und Sonderkonstruktionen
- Enge Abstimmung mit Werksplanung und ausführenden Unternehmen
- Nachvollziehbare Berechnungen gemäß DIN- und EN-Normen
Softwareentwicklung
Digitale Tools für Berechnungsprozesse: nachvollziehbare Herleitungen, standardisierte Workflows und saubere Ergebnis-Reports – ideal für wiederkehrende Bemessungen und Typenstatiken.

